Anne-Sophie Massip - Graphiste Freelance

Naef Projets neufs

Rives 49

naef.ch

 

Contexte & objectifs

Naef Projets neufs a commercialise un programme immobilier  à Satigny, en Suisse, comprenant quatre villas mitoyennes.

L’objectif était de développer une identité visuelle distinctive et des plans lisibles pour accompagner la commercialisation de ces biens.

Naef projets neufs - Rives 49 - Anne-Sophie Massip - www.an-so.fr
Naef projets neufs - Rives 49 - Anne-Sophie Massip - www.an-so.fr
Naef projets neufs - Rives 49 - Anne-Sophie Massip - www.an-so.fr
Naef projets neufs - Rives 49 - Anne-Sophie Massip - www.an-so.fr
Naef projets neufs - Rives 49 - Anne-Sophie Massip - www.an-so.fr

Création de l’identité visuelle

Pour refléter l’esprit et l’esthétique de l’architecture du projet, j’ai conçu une identité visuelle autour des éléments suivants :

  • Logo : Une forme carré avec des rayures pour le rappel des volets coulissants du bâtiments

  • Palette de couleurs : du bleu et du chêne clair qui s’inspirent des matières du projets

  • Typographies : un choix de jeu de de polices modernes qui ont du caractère

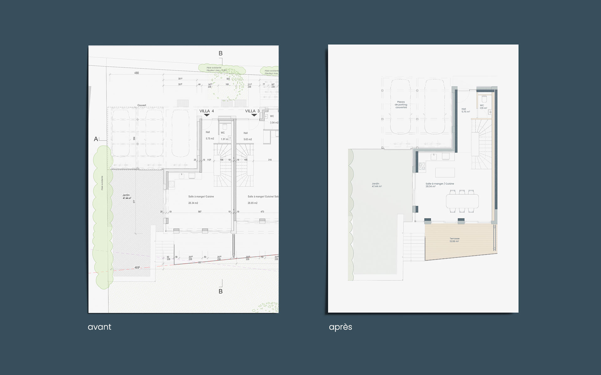
Dossiers de plans

Pour la commercialisation des villas, il fallait créer des dossiers de plans lisibles et séduisants :

  • Retouche de l’ensemble des plans des lots : suppression des cotations et indications non nécessaires, simplification des tracés, ajout de couleurs pour différencier les murs et les espaces, intégration de mobilier, réécriture des surfaces avec la typographie dédiée.

  • Mise en page des dossiers pour les 4 villas : intégration des plans des différents étages, création d’un plan de masse avec une vue d’une coupe du bâtiment, ajout des informations (orientation, surfaces…),.
Naef projets neufs - Rives 49 - Anne-Sophie Massip - www.an-so.fr
Naef projets neufs - Rives 49 - Anne-Sophie Massip - www.an-so.fr
Naef projets neufs - Rives 49 - Anne-Sophie Massip - www.an-so.fr

Ce projet a été réalisé depuis Annecy, en Haute-Savoie, en collaboration avec Naef Immobilier, acteur majeur de l’immobilier de prestige en Suisse.

Date : Février 2025

Logiciel(s) : Illustrator : création du logo et modification des plans / Indesign : mise en page des dossiers de plans

Catégorie(s) : Identité visuellePrint / Édition

#Suisse#Plans#Immobilier#identité

Vous avez un projet ?

Prenons le temps d’un échange pour découvrir ce que je peux vous apporter.